相關產品:
500X持壓泄壓閥結構特點和用途:
持壓泄壓閥由主閥、泄壓/持壓導閥針閥、球閥、微形過濾器和壓力表組成水力控制接管系統。利用水力自動操作,即可以作泄壓閥用又可作持壓閥用。作泄壓閥用時,可維持供水路壓力在設定的安全值之下;做持壓閥用,可維持主閥上游水壓在設定值之上,保持主閥上游供水壓力。 持壓泄壓閥利用水力自力控制,不需要其它裝置和能源,保養簡便,一閥多用。 持壓泄壓閥產品廣泛用于高層建筑、生活區等供水管網系統及城市供水工程。
500X持壓泄壓閥工作原理:
1、作泄壓閥:當泄壓/持壓導閥調整為泄壓狀態時,水通過針閥、主閥控制室、球閥A、泄壓/持壓導閥、球閥B流向出口,此時主閥處于開啟狀態。當進口壓力超過泄壓/持壓導閥設定的安全值時,泄壓導閥會自動開啟,通過球閥C放出部分水,使管路泄壓。當壓力恢復到安全值時,泄壓閥自動關閉。作泄壓閥時,各球閥常開。
2、作持壓閥:當泄壓/持壓導閥調整為持壓狀態時,只要主閥進口水壓低于導閥設定值,導閥即關閉。主要控制室升壓,主閥關閉。當主閥上游供水壓力超過導閥設定壓力時,持壓導閥才能打開,控制室的水經球閥排至出口,控制室降壓主閥開啟,開始供水,即保持了上游水壓。作持壓閥用時,球閥C常閉或用絲堵換下。
500X持壓泄壓閥主要技術參數:
| 公稱壓力(Mpa) | 殼體試驗壓力(MPa) | 密封試驗壓力(MPa) | 適用介質 | 介質溫度(℃) |
| 1.0 | 1.5 | 1.1 | 水 | 0-80 |
| 1.6 | 2.4 | 1.76 | ||
| 2.5 | 3.75 | 2.75 |
500X持壓泄壓閥主要零件材料:
| 零件名稱 | 零件材料 |
| 閥體 閥蓋 | WCB |
| 閥座 閥盤 | 銅合金 |
| 密封圈 O型圈 | 丁腈橡膠 |
| 閥桿 | 2Cr13 |
| 彈簧 | 50CrVA |
| 針型閥 | 銅合金 |
| 球閥 | 銅合金 |
| 泄壓/持壓導閥 | 銅合金 |
| 微型過濾器 | 不銹鋼 |
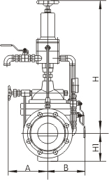
500X持壓泄壓閥結構尺寸圖:

500X持壓泄壓閥連接尺寸(PN 1.0-2.5MPa):
| 公稱通徑DN | L | H | H1 | A | B |
| 50 | 250 | 505 | 90 | 170 | 170 |
| 65 | 280 | 520 | 98 | 180 | 180 |
| 80 | 310 | 535 | 110 | 190 | 190 |
| 100 | 350 | 555 | 120 | 200 | 200 |
| 125 | 400 | 590 | 145 | 215 | 215 |
| 150 | 450 | 645 | 155 | 230 | 230 |
| 200 | 550 | 715 | 190 | 255 | 255 |
| 250 | 650 | 780 | 250 | 295 | 295 |
| 300 | 800 | 880 | 290 | 325 | 325 |
| 350 | 900 | 940 | 330 | 380 | 380 |
| 400 | 1000 | 1000 | 360 | 415 | 415 |
| 450 | 1000 | 1030 | 445 | 435 | 435 |
| 500 | 1100 | 1060 | 495 | 460 | 460 |
| 600 | 1100 | 1150 | 550 | 520 | 520 |
| 700 | 1450 | 1210 | 605 | 570 | 570 |
| 800 | 1560 | 1290 | 730 | 620 | 620 |
| 900 | 1800 | 1390 | 800 | 670 | 670 |
| 1000 | 2000 | 1500 | 910 | 830 | 830 |